license granted. Completed 2024
.png)
Location
Javea, Alicante
Year
2024
build
310m2
plot
1069m2
bed & bath
3 bedrooms & 3 bathrooms
Welcome to Can Anaïs, our Mediterranean style new-build construction project in Javea. This stunning property boasts breathtaking views of the Montgo mountain and mesmerising sunsets.
The beautiful Can Anaïs is a fully furnished luxury 3 bedroom suite villa ideally located on the modern deluxe urbanization ‘El Piver’, with close proximity to the old town of Javea, Javea golf course, the Arenal beach, and a selection of wonderful restaurants.
The design is a classic fusion of timeless Mediterranean style with modern open plan living with the white washed facade combining with stonework and wooden pergolas to stunning effect.
Sat on a gently sloping plot offering privacy and views, this lovely property was designed with comfort in mind with the well distributed lower floor having the pool terrace leading directly from the large living area (65sqm) and 2 generous sized guest suites. From this level we can enjoy panoramic views taking in the sunset, the Montgo massif, and spanning across the old town to Cabo San Antonio.

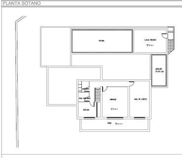
plans

.png)


property features
Sea views
BBQ / Summer kitchen
Carport
Full equipped
Furnished
Garage
Hot and cold A/C
Mountain views
Naya
Off road parking
Open Views
Pool
Roof terrace
Solar
Storage room
Terrace
Contact us today to schedule a viewing and embark on a journey to the Mediterranean paradise you've been longing for.
On the upper floor there is the large master suite with wrap around private terrace which offers gorgeous expansive views across the orange groves taking in the sea.
The huge basement level has a vast garage for parking multiple vehicles with a light patio/garden allowing plenty of natural light to flow in. This area can also be utilised for other purposes, such as gymnasium, a hobby room, cinema room or even further bedrooms if required. Here we also have a wine cellar, utility room, and storage room.
Sold Turn-key fully furnished extras include : under floor heating and ducted air conditioning with zonal control, Siemens electrical appliances and white goods, Solar protection glazing with security glass, Energy efficient installations such as low consumption air sourced heat pump with photovoltaic solar energy.
Set for completion 2024.



PROJECT OWNER
Villas-Plots & Sky Blue Properties
Sofia McRae Johnson
interior design







